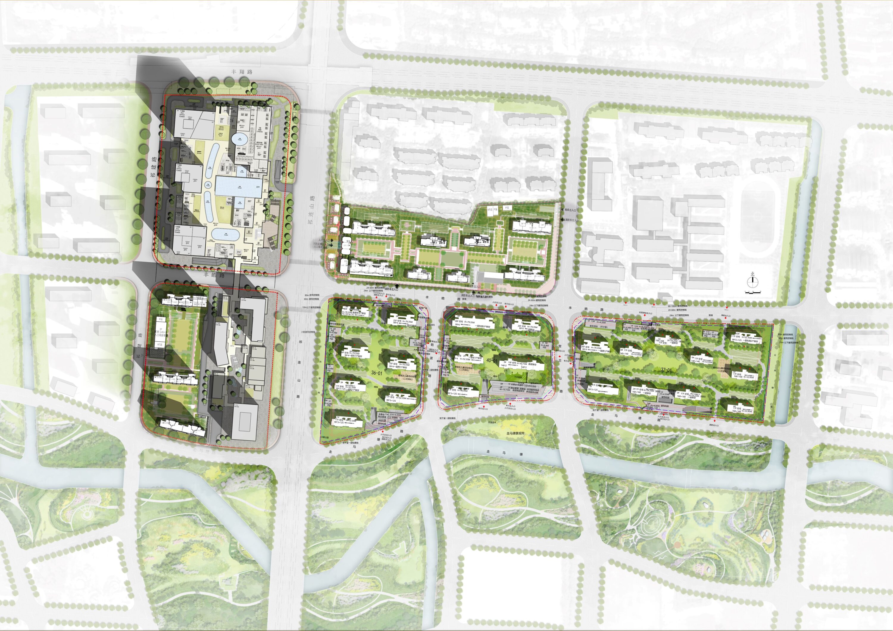
宝山万象汇
宝山万象汇是一个以“宝山”寓意为灵感——“藏于山中的珍宝”——打造的变革性城市目的地。项目重新构想建筑、自然与城市生活的关系,将居住、零售与办公空间融合为一个统一且充满活力的环境。通过功能性与深思熟虑的设计结合,宝山万象汇实现了生活、工作、购物与休闲的无缝互动。
项目详情
在建
2年
上海
顾问
5+DESIGN
IPD
IFG
IFG
HDA
设计
Paul Gasiorkievicz
Paul Gasiorkievicz;苏英姿;陈泰宏;郁一思;陈炜;Yundi Lu;赖秋惠;孟瑾;高凌洁;David Shia; Jessie Madrid; Andy Lemus














